Vis HECO MULTI-MONTI-plus F - tête fraisée - D6 x L140 - Réf. 48507
- Référence48507
- Fabricationallemande
- MarqueHECO
- MatériauAcier
- RevêtementZingué blanc, A2K
- EmpreinteT-Drive
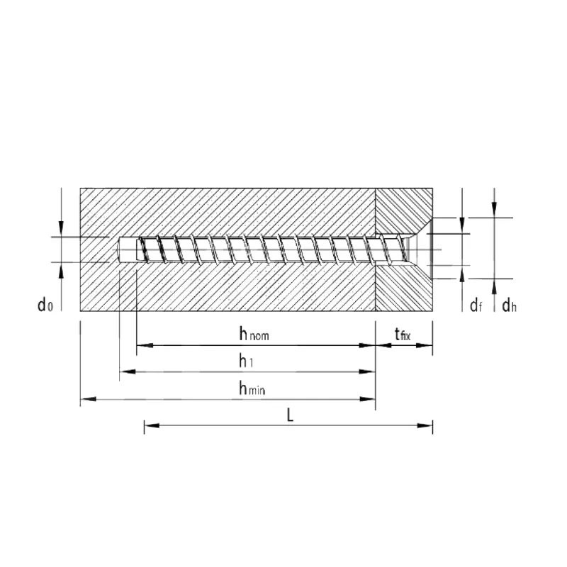
- Diamètre nominal du foret5mm
- Diamètre de la tête11,5mm
- Prof. du trou de perçage, h150mm
- Prof. d’ancrage nominal [hnom]45mm
- Longueur du filet63mm
- Type de têtetête fraisée
- Classe de résistance au feuF120/R120
- Épaisseur maximale, tfix195mm
- Épaisseur maximale, tfix2105mm
- Taille d’empreinteT-30
- Prof. du trou de perçage, h240mm
- Diamètre de pré-perçage df7mm
- Prof. d’ancrage nominal, hnom235mm
- Couple de serrage max. recommandé de la visseuse électrique, Tmax1100Nm
- Couple de serrage max. recommandé de la visseuse électrique, Tmax275Nm
- Épaisseur minimale du matériau-support, [hmin]100mm
- Distance minimale du bord, cmin30mm
HECO
La qualité allemande
Depuis 1880, HECO conçoit et produit des vis innovantes et des éléments de fixation utilisés mondialement avec beaucoup de succès. En effet, à l’échelle internationale les vis HECO sont synonymes de sécurité et de fiabilité.
