TEXTE AVANT GLOBAL
Il est essentiel de s’équiper avant toute mise en œuvre. Pour cela, il nous faut des équipements de protection individuelle de base, des matériels spécifiques pour mettre en place la structure et les plaques de plâtre.
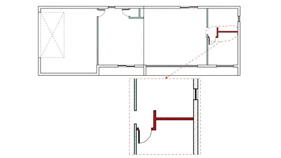
Sur ce chantier, il y a plusieurs endroit ou nous avons mis en place des mur de séparation en plaque de plâtre sur des structures métalliques. Cependant, c’est sur cette partie encadrée que nous allons exposer dans cet article. En effet, le mur sur cette partie nous n’allons pas seulement créer un simple mur mais nous allons également créer un dégagement et des retours d’angles.
Avant de commencer les travaux, il faut vérifier l’état de la dalle sur laquelle la structure du mur va être posée. Elle doit être plane, il faut faire des ajustement si nécessaire.
Pose de la structure
La mise en place des éléments de la structure d’une cloison est essentielle pour garantir la stabilité, la résistance et la durabilité de la cloison elle-même. Une installation correcte des montants, rails et fixations assure une bonne répartition des charges, une isolation acoustique et thermique efficace, ainsi qu’une sécurité renforcée. De plus, une structure bien montée permet de maintenir l’alignement et la planéité de la cloison, ce qui est crucial pour l’installation de revêtements, d’éléments électriques, ou autres équipements. Une mauvaise installation peut entraîner des déséquilibres, des fissures, voire des déformations, affectant la performance du cloison à long terme.
La mise en place de la structure de notre cloison suit TEXTE APRES GLOBAL







